tower villa

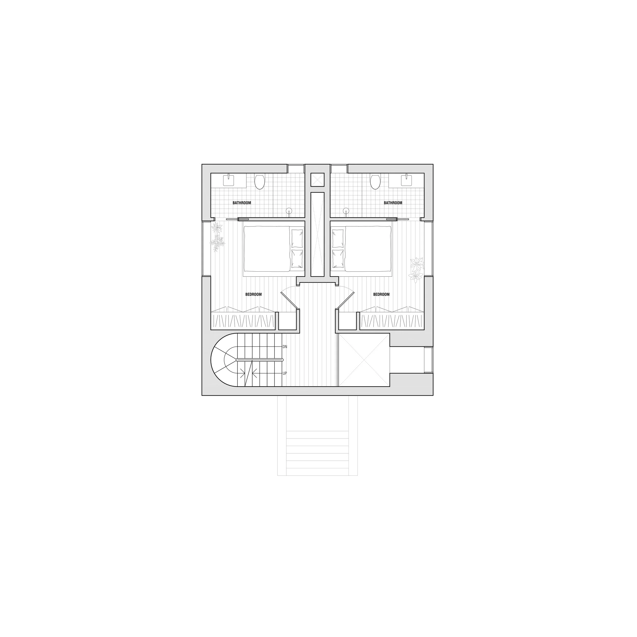
description: using old bricks found piled on the property, tower villa has a facade that is made of thin brick veneer slices, arranged in a pattern that utilizes the varying size and surface finish quality contained within a single brick. The 4 storey villa contains a circulation corridor at the front, with living spaces extending off towards the edge of a forest. 

status: design in progress

type: new build

client: private

location: croatia

year: 2024-2025